Scandinavian cottage with huge mud room, cathedral ceiling, 2 bedroom and amazing kitchen with

Dryburgh Design et Architecture Voici l'un des plans coups de cœur de l'équipe Dryburgh Design & Architecture, proposant un parfait équilibre de volume. En choisissant ce plan, vous optez pour une demeure d'inspiration scandinave et Farmhouse, au design intemporel. L'accent est mis sur l'aire de vie, à la fois ouverte et lumineuse. Pour vous permettre de contempler la nature.
SCANDINAVE ? LA MAISON TEMOIN PARFAITE ! Berenice Big ! Arkitektur, Drömhus, Hus

Ces maisons sont généralement aérées et lumineuses et se concentrent sur l'environnement naturel et le lien avec la nature. Selon la taille de la maison, un plan de maison scandinave peut comprendre trois ou quatre chambres, avec deux salles de bain par étage. Un plan de maison scandinave typique peut atteindre 140 mètres carrés.
plainpied scandinave avec garage Plan maison, Plan de maison unifamiliale, Plans d'étage cottage

Les maisons scandinaves sont souvent caractérisées par des lignes épurées et des formes géométriques simples. Les meubles sont souvent minimalistes, avec des formes simples et épurées et des couleurs neutres. Une autre caractéristique importante du style scandinave est la lumière naturelle. Les pays nordiques ont des hivers très.
Plan de maison scandinave avec planchers inversés

Nova Builders, Inc. a home addition and garage builder has been providing home improvement services since 2018 in Northern Virginia. Here at Nova Builders, Inc., we work with you to plan, design, and build that perfect room. As your local design and building experts, we're here to help with everything from the initial stages of design and.
Ganze Unterkunft in PetiteRivièreSaintFrançois, Kanada. Villa Boreale is a scandinavian

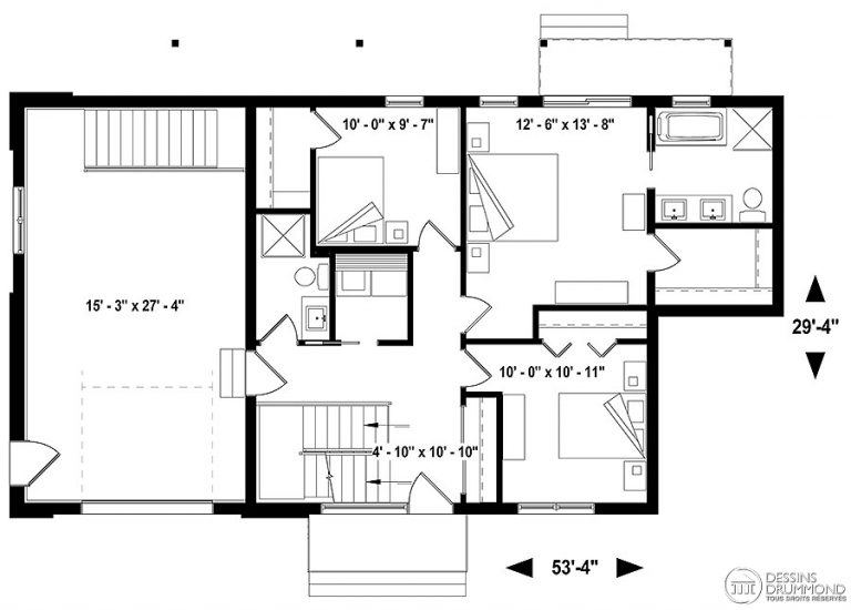
Balnea (6122) Découvrez le plan 6122 - Balnea de la collection maison unifamiliale de Dessins Drummond. Maison scandinave, superbe cuisine avec garde-manger et arrière-cuisine, belle verrière près de la s. à dîner. Superficie de 4207 pi2.
Plainpied scandinave avec garage et terrasse abritée nouveau plan

Le plan de maison d'inspiration Scandinave Hygge 3 (#3286-V2) propose 1686 pi.ca. aménagés sur un plancher, ainsi qu'un garage attaché avec plafond à 13'10'' et un sous-sol non fini, à aménager. L'entrée split level regroupe un vestiaire de type walk-in ainsi qu'un coin bureau.
Plan de maison unifamiliale Olympe No. 3992 Farmhouse style house plans, Metal building homes

Contact. 819 840-6055Menu. Accueil. Collections de plans. Plain-pied. Ë_167A. Ë_167A. Lorsque nous avons demandé à nos fans des réseaux sociaux ce qu'ils désiraient voir comme prochain plan dans notre banque, la réponse était claire; Un concept de bungalow sans sous-sol, ouvert, inspiré du style scandinave et avec terrasse intégré.
Plan de maison scandinave no W1909BH de Dessins Drummond Summer house design, Scandinavian

Type de plan:Chalet / Maison unifamiliale Budget de construction:245 000$ à 305 000$ Dimension du bâtiment:30' de large X 38' de profondeur Superficie:1620p² Garage:Sans garage Avec ou sans sous-sol:Aucun sous-sol Chambre / bureau:3 chambres / bureaux Salle de bain ou salle d'eau:2 salles de bain ou salles d'eau *Tous nos plans sont entièrement modifiables selon vos goûts et vos besoins.
Pin on Maison

Plans de maison, chalet, garage et jumelé style scandinave. Vous aimez l'architecture des pays scandinaves? Lignes épurées, couleurs des matériaux neutres comme le blanc, le noir, le gris et le bois, fenestration abondante et grands balcons en sont les principales caractéristiques. Nos plans de maison scandinave et plans de chalet d.
Chalet scandinave préfabriqué Building a small cabin, Modern cottage, Ecological house

Laissez-vous séduire par ce plan de chalet scandinave et concrétisez votre projet de vie. Nous vous invitons à explorer davantage sur notre boutique en ligne, à entrer en contact pour affiner vos plans ou à nous consulter pour personnaliser ce modèle selon vos aspirations. Avec Plan Maison Québec, votre rêve de chalet prend vie.
modele maison scandinave Recherche Google Building Design, Building A House, Little House

Plans de maison Scandinave & modèles d'inspiration Scandinave. Se distinguant par leur simplicité, efficacité et beauté, les maisons de style scandinave sont souvent épurées et leur fonctionnalité concentrées sur les aspects pratiques de la vie courante. Pas de fla-fla, tout a une raison et une place pour exister.
TwoStory 4Bedroom Bridge Scandinavian Home (Floor Plan) in 2020 House floor plans, Modern

Plan de maison scandinave ( farmhouse) avec garage double. Hauteur libre au rez-de-chaussée de 8'. Fondation a 8'-6" de hauteur. Aire de vie située à l'arrière. Salle de lavage au palier du garage. Cuisine avec îlot et grand garde-manger de type walk-in. Chambre des maîtres avec grand walk-in. Bachelor au sous-sol avec entrée sur le.
Bergen Plan de maison en ligne TALO Plans

Plan maison scandinave avec garage — 3 inspirations, modèles et prix. En quête d'inspiration ou encore du plan de maison scandinave avec garage de vos rêves que vous allez choisir pour la construction de votre propriété ? Voici 3 inspirations : Dessin Drummond — Hygge 3286.
L'Évolutive Classique à étage avec garage I Habitations Jutras

Découvrez le plan maison scandinave par Plan Maison Québec, une conception alliant luxe et simplicité sur 2024p². Profitez d'une maison unifamiliale sans garage, avec une esthétique raffinée et un intérieur chaleureux. Visitez notre site pour ce plan maison scandinave et personnalisez votre demain.
Plainpied scandinave avec garage et terrasse abritée nouveau plan

Découvrez le plan de maison scandinave avec garage de Plan Maison Québec : une conception impeccable, alliant style scandinave et fonctionnalité, avec un espace de vie généreux de 2300p². Visitez notre boutique en ligne pour ce plan de maison scandinave avec garage ou contactez-nous pour l'adapter à vos rêves.
Plan de maison scandinave avec planchers inversés

Type de plan:Chalet / Maison unifamiliale Budget de construction:175 000$ à 215 000$ Dimension du bâtiment:46' de large X 26' de profondeur Superficie:1200p² Garage:Sans garage Avec ou sans sous-sol:Aucun sous-sol Chambre / bureau:3 chambres / bureaux Salle de bain ou salle d'eau:2 salles de bain ou salles d'eau *Tous nos plans sont entièrement modifiables selon vos goûts et vos besoins.
.